Consultez les documents du lotissement
Découvrez la grille tarifaire selon votre projet immobilier
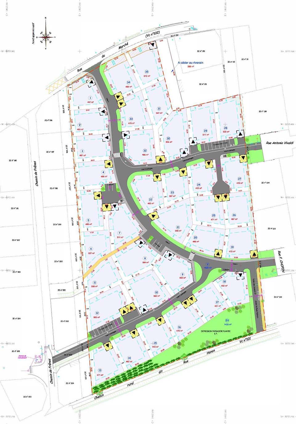
| Numéro de lot | Superficie | Prix | Disponibilité | Plan de vente |
|---|---|---|---|---|
| 1 | 447 m² | – | Vendu | Visualiser le plan |
| 2 | 463 m² | – | Vendu | Visualiser le plan |
| 3 | 467 m² | – | Vendu | Visualiser le plan |
| 4 | 486 m² | – | Vendu | Visualiser le plan |
| 5 | 485 m² | – | Vendu | Visualiser le plan |
| 6 | 527 m² | – | Vendu | Visualiser le plan |
| 7 | 511 m² | – | Vendu | Visualiser le plan |
| 8 | 584 m² | – | Vendu | Visualiser le plan |
| 9 | 555 m² | – | Vendu | Visualiser le plan |
| 10 | 582 m² | – | Vendu | Visualiser le plan |
| 11 | 558 m² | – | Vendu | Visualiser le plan |
| 12 | 583 m² | – | Vendu | Visualiser le plan |
| 13 | 471 m² | – | Vendu | Visualiser le plan |
| 14 | 460 m² | – | Vendu | Visualiser le plan |
| 15 | 443 m² | – | Vendu | Visualiser le plan |
| 16 | 470 m² | – | Vendu | Visualiser le plan |
| 17 | 431 m² | – | Vendu | Visualiser le plan |
| 18 | 452 m² | – | Vendu | Visualiser le plan |
| 19 | 472 m² | – | Vendu | Visualiser le plan |
| 20 | 466 m² | – | Vendu | Visualiser le plan |
| 21 | 548 m² | – | Vendu | Visualiser le plan |
| 22 | 465 m² | – | Vendu | Visualiser le plan |
| 23 | 397 m² | – | Vendu | Visualiser le plan |
| 24 | 433 m² | – | Vendu | Visualiser le plan |
| 25 | 471 m² | – | Vendu | Visualiser le plan |
| 26 | 487 m² | – | Vendu | Visualiser le plan |
| 27 | 419 m² | – | Vendu | Visualiser le plan |
| 28 | 533 m² | – | Vendu | Visualiser le plan |
| 29 | 511 m² | – | Vendu | Visualiser le plan |
| 30 | 604 m² | – | Vendu | Visualiser le plan |
| 31 | 547 m² | – | Vendu | Visualiser le plan |
| 32 | 495 m² | – | Vendu | Visualiser le plan |
| 33 | 470 m² | – | Vendu | Visualiser le plan |
| 34 | 488 m² | – | Vendu | Visualiser le plan |
| 35 | 572 m² | – | Vendu | Visualiser le plan |
Pourquoi faire construire à Potigny ?
Un cadre de vie idéal : Potigny est une commune verdoyante et résidentielle, offrant un cadre de vie paisible et agréable. Avec ses espaces verts et son environnement calme, c'est l'endroit idéal pour ceux qui recherchent la tranquillité tout en étant proche des commodités. Une commune à taille humaine, parfaite pour les familles.
Une accessibilité optimale :
À 10 minutes de Falaise : un bourg dynamique avec commerces et infrastructures.
À 30 minutes de Caen : accès rapide à la métropole via la D658 et la N158.
En résumé, Potigny combine les avantages d'une proximité urbaine avec le charme d'un environnement rural, offrant un cadre idéal pour la construction de votre future maison.
Ne manquez pas cette opportunité ! Pour plus de renseignements, merci de nous contacter au 02 31 94 98 98 / contact@citizim.com.
Localisation du programme :
Plus d’informations ? Contactez-nous !
CITIZIM en tant que responsable de traitement met en œuvre un traitement de données ayant pour finalités la réponse aux demandes des personnes ayant souhaité entrer en contact avec elle et la prospection. Ce traitement est fondé sur l’intérêt légitime du responsable de traitement de développer son activité et de gérer les relations avec les clients et les prospects. Vous disposez d’un droit d’accès, d’interrogation, de rectification, d’effacement, de limitation et d’opposition au traitement de vos données ainsi qu’un droit à la portabilité de ces dernières. Pour en savoir plus sur le traitement des données et vos droits cliquez ici